Skip to main content
Home
Our Apartments
Pricing
Plans
Contact
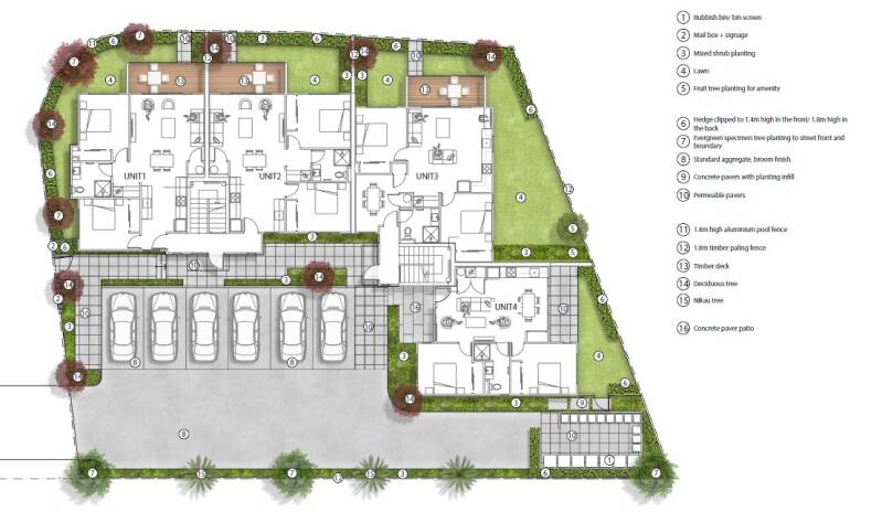
LANDSCAPE PLAN
FLOOR PLAN